ФОРУМ ПО ЭЛЕКТРИКЕ И ЭЛЕКТРИЧЕСТВУ


Полная версия ВходРегистрация

ПоискБлагодарностиФото-галерея
Видео электриковFAQ



Пред. тема | След. тема
Страница 1 из 1 [ Сообщений: 4 ]

Начать новую тему Ответить

Версия для печати

Подключение вибродвигателя

Подключение вибродвигателя

Не в сети - Заглянувший

Профиль 
07 мар 2011, 15:58 Сообщение
Здравствуйте, уважаемые форумчане!
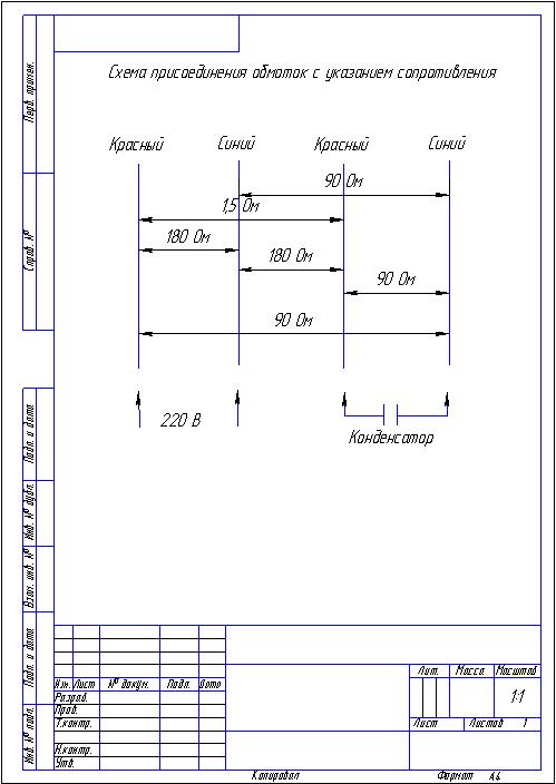
Как правильно подключить вибродвигатель?! В комплекте идет конденсатор емкостью 2,5мкФ. Подключение постоянное (после запуска кондер не отключается). С данным кондером движок гудит, но не запускается. Путем подбора запустил двигатель с конденсатором емкостью 10мкФ.С электродвигателя 4 вывода, но что самое интересное - все выводы прозваниваются между собой! На шильдые указана мощность 150Вт и напряжение 220В, т.е. как я понимаю электродвигатель однофазный конденсаторный. Но почему 4 вывода, таких не встречал: или 4, но по 2 разных обмотки, не прозванивающихся между собой (пусковая и рабочая) или 3 вывода с общейточкой собранной внутри двигателя. Схема существующего подключения прилагается.
Заранее благодарен за ответы.

Вложения

Подключение вибродвигателя - Вибродвигатель
Подключение вибродвигателя - Вибродвигатель
[ 48.49 КБ | Просмотров: 600 ]


Ответить с цитатой 


Re: Подключение вибродвигателя

Не в сети - Инженер

Профиль 
07 мар 2011, 18:58 Сообщение
трехфазный адаптированный под однофазную сеть для удобства выведены концы только для сети и конденсатора
Ответить с цитатой 


Re: Подключение вибродвигателя

Не в сети - Лидер тех. поддержки

Профиль 
07 мар 2011, 18:58 Сообщение
В свое время, из-за дефицита маломощных исполнительных двигателей использовали двигатели РД-09 на 127В с двумя обмотками включаемыми последовательно с шунтированием одной обмотки конденсатором емкостью на порядок меньшей, чем принято для однофазного пуска, реверс достигался переключением конденсатора к другой обмотке.
Интересно, как измерили сопротивление 1,5 Ом?
Если считать что вывод Красный 1-й и Красный 2-й одно и тоже, то напряжение надо подать на выводы: Синий 1-й и любой Красный (180 Ом), а конденсатор подключить к Синему 2-му и , в зависимости от требуемого направления вращения, или к другому Красному или к Синему 1-му (т. е. шунтируя одну из обмоток по 90 Ом).
Ответить с цитатой 


Re: Подключение вибродвигателя

Не в сети - Заглянувший

Профиль 
07 мар 2011, 19:13 Сообщение
Спасибо огромное за отзывы! Другими словами, как я понял, подключение, изображенное мною на схеме верное на 100%? И по ходу разбирательства еще вопрос: а какая же емкость должна быть в случае электродвигателя мощьностью 150Вт. Кстати вот аналогичный вибродвигатель их много видов маде ин чайна (не сочтите за рекламу, качество девайса не очень, другого фото не нашел).
P.S. Сопроитивление мерял цифровым тестером.

Вложения

Подключение вибродвигателя - vibrator-150vt_003b
Подключение вибродвигателя - vibrator-150vt_003b
[ 138.88 КБ | Просмотров: 583 ]


Ответить с цитатой 

Начать новую тему  Ответить
Вернуться к началу


Страница 1 из 1 [ Сообщений: 4 ]
Пред. тема | След. тема

Сейчас эту тему просматривают: нет зарегистрированных пользователей и гости 1






Найти
Перейти
 


cron
Полная версия

Рейтинг-каталог строительных сайтов - Electric House