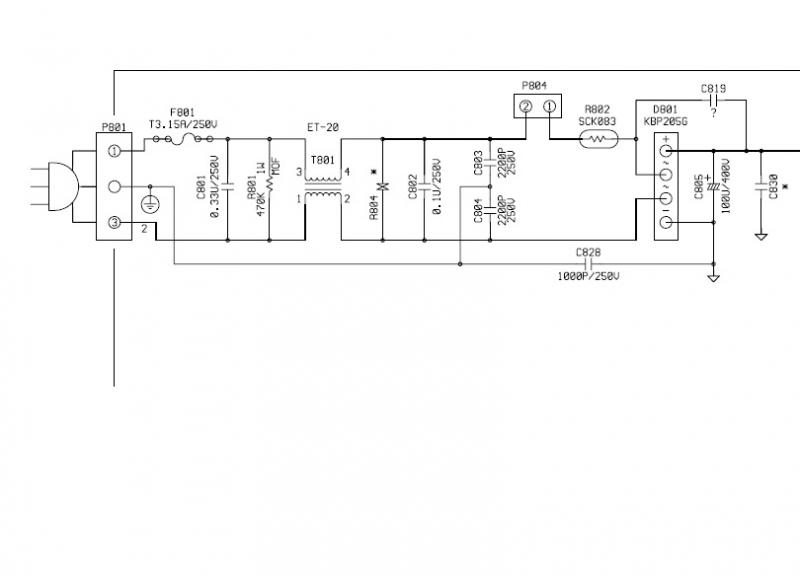
после того ,как я заменил предохранитель --произошло замыкание
около предохранителя стоят два конденсатара --есть предположение ,что если поменять их - то можно починить блок !
маркеровки на них нет !
вариант второй - купить новый блок !
какие будут советы !


Загрузка. Подождите...






































