-
- Объявления
|
Электромонтаж Электромонтажные работы в деревянном доме. www.electric-house.ru |
Местная Конституция | FAQ - Часто задаваемые вопросы | Для новичков! | Реклама на форуме! | Публикация сообщений | Как вставить картинку или файл
Прежде чем задать вопрос, воспользуйтесь поиском - возможно, что такая тема уже есть на форуме. За нарушение правил Ваш вопрос может быть удален без объяснения причин!
-
- Сообщение
Выбор номинала автомата из дроби
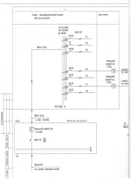
по проекту:
Что из них 63А и 100А?
Спасибо.
-
- Сообщение
- sergey_sav







- Лидер тех. поддержки

- Технический директор

- Прогресс звания:
-
- Заслуженная репутация: 161 +50 / -0

















Re: Выбор номинала автомата из дроби
63А - номинальный ток уставки защиты.
Все тематические вопросы и ответы на них только на форуме!
Санк-Петербург. Электромонтажные работы.
-
- Сообщение
Re: Выбор номинала автомата из дроби
-
- Сообщение
- sergey_sav







- Лидер тех. поддержки

- Технический директор

- Прогресс звания:
-
- Заслуженная репутация: 161 +50 / -0

















Re: Выбор номинала автомата из дроби
Рамиль писал(а):т.е. 100А - это ток который может максимально долго проходить через контакты автомата
Можно и так сказать.
Или иными словами, 100А - номинальный ток контактной группы.
Все тематические вопросы и ответы на них только на форуме!
Санк-Петербург. Электромонтажные работы.
-
- Сообщение
Re: Выбор номинала автомата из дроби
а 63А - ток, при котором автомат выключится?
Ток при котором выключаеться автомат можно узнать с времятоковых характеристик. Если автомат на 63 А это не значит, что он тотчас отключиться при достижении тока в 63 А.
-
- Сообщение
Re: Выбор номинала автомата из дроби
-
- Сообщение
Re: Выбор номинала автомата из дроби
sergey_sav писал(а):Рамиль писал(а):
т.е. 100А - это ток который может максимально долго проходить через контакты автомата
Можно и так сказать.
Или иными словами, 100А - номинальный ток контактной группы.
Такое обозначение - выдумка автора( проектировщика), поэтому лучше спросить у него. Примеры правельных обозначений смотрим во вложении
- Вложения
-
Выключатели автоматические серии ВА57. Техническое описание..pdf- (1.06 МБ) Скачиваний: 145
-
- Сообщение
- sergey_sav







- Лидер тех. поддержки

- Технический директор

- Прогресс звания:
-
- Заслуженная репутация: 161 +50 / -0

















Re: Выбор номинала автомата из дроби
Pukin писал(а):Такое обозначение - выдумка автора( проектировщика)
Это не выдумка, а задумка... Приведённые во вложении характеристики АВ - типовые. А при заказе можно оговорить требования к тепловому и электромагнитному расцепителю. Мы же не знаем где и зачем этом АВ устанавливается...
Хотя "шуток от проектировщиков" можно ожидать где угодно. "Плавали, знаем" ©
То что акцентировали на наименовании АВ, это хорошо, а то по привычке принял знаменатель за "габарит" автомата, даже не посмотрев марку...
сорри.Все тематические вопросы и ответы на них только на форуме!
Санк-Петербург. Электромонтажные работы.
-
- Сообщение
Re: Выбор номинала автомата из дроби
объясните как проще, я не электрик!((
Добавлено спустя 26 минут 54 секунды:
Рамиль писал(а):где там номинальный ток расцепителя?
ну вот оговорка....я имел ввиду ток уставки.
-
- Сообщение
- sergey_sav







- Лидер тех. поддержки

- Технический директор

- Прогресс звания:
-
- Заслуженная репутация: 161 +50 / -0

















Re: Выбор номинала автомата из дроби
Рамиль писал(а):объясните как проще, я не электрик!
Тогда Вам то зачем?
Все тематические вопросы и ответы на них только на форуме!
Санк-Петербург. Электромонтажные работы.
-
- Сообщение
Re: Выбор номинала автомата из дроби
Добавлено спустя 21 минуту 42 секунды:
давайте сначала...
12 квартирный жилой дом. По проекту:
- расчетный ток 28,8А
- расчетная нагрузка 18кВт
- косинус фи 0,96
В опросном листе на панели ВРУ:
- номинальный ток автоматического выключателя 100А
- номинальный ток тепловой отсечки 63А.
У нас на складе есть автоматы фирмы КЭАЗ. Номиналы: 63, 80 и 100А. Какой выбрать?
Я раньше думал что значение номинального тока автомата равно значению теплового расцепителя.
т.е. если у меня расчетный ток 50А я выбирал с запасом автомат на номинал 63А.
-
- Сообщение
Re: Выбор номинала автомата из дроби
В приведенном примере номинальный ток автомата 100 А, а номинальный ток теплового расцепителя 63 А
-
- Сообщение
- sergey_sav







- Лидер тех. поддержки

- Технический директор

- Прогресс звания:
-
- Заслуженная репутация: 161 +50 / -0

















Re: Выбор номинала автомата из дроби
Рамиль писал(а):давайте сначала...

Добавлено спустя 14 минут 53 секунды:
Как пример. Номиналы автоматов обведены.
- Вложения
Все тематические вопросы и ответы на них только на форуме!
Санк-Петербург. Электромонтажные работы.
-
- Сообщение
Re: Выбор номинала автомата из дроби
но ведь на корпусе автомата указан только номинальный ток. ток теплового расцепителя не указан! как я должен выбирать автомат по тепл.расцепителю если он не указывается ни в каталоге ни на корпусе автомата?

Добавлено спустя 2 минуты 29 секунд:
sergey_sav писал(а):Киньте позырить
завтра отсканирую)
-
- Сообщение
Re: Выбор номинала автомата из дроби
-
- Сообщение
Re: Выбор номинала автомата из дроби
Рамиль писал(а):У нас на складе есть автоматы фирмы КЭАЗ. Номиналы: 63, 80 и 100А. Какой выбрать?
Выбирайте на 63А, как требуется по проекту
-
- Сообщение
Re: Выбор номинала автомата из дроби
sergey_sav писал(а):100А - номинальный ток автомата, то бишь, габаритный размер.
63А - номинальный ток уставки защиты.
Pukin писал(а):Выбирайте на 63А, как требуется по проекту
вы профессионалы так любите вводить в заблуждения

-
- Сообщение
Re: Выбор номинала автомата из дроби
Рамиль писал(а):вы профессионалы так любите вводить в заблуждения
Есть немного, не без того.
Однако, все таки желательно уточнить у проектировщика(цы) его задумку, т.к. кроме теплового расцепителя, есть еще расцепитель электромагнитный и его номинал также должен быть указан.
-
- Сообщение
Re: Выбор номинала автомата из дроби
....Я вас прекрасно понимаю теперь, выбирать надо по значению теплового расцепителя, а значение номинального тока (габарита) может быть любым (и 80, и 100, и 250А)
Но как узнать какого значение тока теплового расцепителя автомата с номиналами 63А, 80А и 100А?
Я только это хочу знать
. На корпусе автомата не пишется, в каталогах нет, менеджеры по продаже пожимают плечами.-
- Сообщение
Re: Выбор номинала автомата из дроби
Рамиль писал(а):Pukin по проекту номинал в 100А ведь требуется.
Если Вы все знаете, зачем спрашиваете?
Можно не отвечать, т.к. вопрос риторический

-
- Ссылки на тему
| Ссылка: | |
| BBcode: | |
| HTML: |
-
- Похожие темы
- Ответы
- Просмотры
- Последнее сообщение
-
-
Кран в ванной бьется током от соседского автомата
1, 2 Sipsikiarch в форуме Электромонтаж в квартире - 24
- 579
-
elhouse
26 мар 2014, 08:05
-
Кран в ванной бьется током от соседского автомата
-
-
Сила тока у 3-фазной сети и установка автомата
АлександризРиги в форуме Вопросы от чайников - 1
- 1041
-
ВИТАЛИЙ ЙЙ
25 фев 2010, 19:56
-
Сила тока у 3-фазной сети и установка автомата
-
-
Номинал общего автомата в квартирном щите?
Grumm в форуме Электромонтаж в квартире - 4
- 417
-
sergey_sav
02 май 2012, 22:56
-
Номинал общего автомата в квартирном щите?
-
-
Ток трёхфазного автомата 63А - общий или на фазу?
justrik94 в форуме Электроустановочные изделия - 1
- 63
-
slavapril
05 мар 2015, 17:34
-
Ток трёхфазного автомата 63А - общий или на фазу?
-
-
Подбор автомата в квартирном щитке
leonid1937 в форуме Электромонтаж в квартире - 5
- 3011
-
sserg
31 окт 2009, 14:12
-
Подбор автомата в квартирном щитке
-
- Объявления
Вернуться в Электроустановочные изделия
Кто на форуме
Всего посетителей: 1, из них зарегистрированных: 0, скрытых: 0 и гостей: 1 (основано на активности пользователей за последние 10 минут)
Больше всего посетителей (279) здесь было 04 сен 2013, 15:45
Сейчас эту тему просматривают: нет зарегистрированных пользователей и гости 1
Права доступа
Вы не можете начинать темы
Вы не можете отвечать на сообщения
Вы не можете редактировать свои сообщения
Вы не можете удалять свои сообщения
Вы не можете добавлять вложения
Легенда
| Новые сообщения | Нет новых сообщений | Форум закрыт | |||
| Подфорум Новые сообщения | Подфорум Нет новых сообщений | Ссылка на форум |
-
- Объявления
|
phpBB® Forum Software © phpBB Group
Русская поддержка phpBB Связь с администрацией Администраторский раздел |
|


Загрузка. Подождите...



























