ФОРУМ ПО ЭЛЕКТРИКЕ И ЭЛЕКТРИЧЕСТВУ


Полная версия ВходРегистрация

ПоискБлагодарностиФото-галерея
Видео электриковFAQ



Пред. тема | След. тема
Страница 1 из 1 [ Сообщений: 15 ]

Начать новую тему Ответить

Версия для печати

Покритикуйте пожалуйста 1- схему электрооборудования двушки

Покритикуйте пожалуйста 1- схему электрооборудования двушки

Не в сети - Новенький

Профиль 
29 авг 2013, 15:27 Сообщение
Добрый день!
Уважаемые опытные форумчане, прошу Вас покритиковать 1-фазную схему электрооборудования двухкомнатной квартиры (новостойка).
Заранее спасибо!

Вложения

Комментарий к файлу: Схема
Схема - Схема электрооборудования
Схема - Схема электрооборудования
[ 45.92 КБ | Просмотров: 697 ]


Ответить с цитатой 


Re: Покритикуйте пожалуйста 1- схему электрооборудования двушки

Не в сети - Член клуба

Профиль 
29 авг 2013, 19:53 Сообщение
1. слишком много узо, но это дело вкуса.
2. узо включают последовательно с автоматом, ток отключения которого не выше номинального тока узо
3. на с\у поставил бы узо 16А\10мА
Ответить с цитатой 


Re: Покритикуйте пожалуйста 1- схему электрооборудования двушки

Не в сети - Лидер тех. поддержки

Профиль 
29 авг 2013, 20:53 Сообщение
УЗО много не бывает... :))biggrin
А вот номиналы стоит пересмотреть. Все УЗО 40/0,03, а последнее 63/0,03.

ЗЫ. Схемку стоит привести к удобочитаемому виду, чтобы не разбирать, куда и какую линию отправили...
Также надо указать полюсность автоматов, а то судя по картинке у Вас прямое нарушение в самом начале: в проводнике РЕ не должно быть коммутационных аппаратов.
Ответить с цитатой 


Re: Покритикуйте пожалуйста 1- схему электрооборудования двушки

Не в сети - Новенький

Профиль 
30 авг 2013, 06:17 Сообщение
Доброе утро!
1) Проводник РЕ-идет от копуса щитка на площадке.
2) Квартирный щиток начинается с автомата С50 - который стоит уже в кваритире, в щитке на площадке (вчера посмотрел ещё раз - как на схеме С63, а потом УЗО 50А/100мА (на схеме по ошибке указал УЗО 63А/100мА).
2) Все УЗО, которые обозначены на схеме буквой Б - 25А/30мА, а крайнее на схеме (справа) - 40А/30мА.
3) Насчет УЗО для ванной согласен - поменяю на 16А/10мА

Прошу прощения, но схему пока поправить не могу - не доехал до работы.
Спасибо!
Ответить с цитатой 


Re: Покритикуйте пожалуйста 1- схему электрооборудования двушки

Не в сети - Новенький

Профиль 
30 авг 2013, 12:33 Сообщение
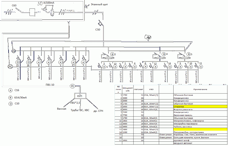
Внес необходимые изменения, обозначил этажный щиток и поменял узо на ванную и бойлер - поставил 25А/10мА. Теперь похоже на правду или стоит внести ещё какие-нибудь изменения (дополнения)?
заранее спасибо!

Вложения

Покритикуйте пожалуйста 1-  схему электрооборудования двушки - Схема электрооборудования
Покритикуйте пожалуйста 1- схему электрооборудования двушки - Схема электрооборудования
[ 44.01 КБ | Просмотров: 661 ]


Ответить с цитатой 


Re: Покритикуйте пожалуйста 1- схему электрооборудования двушки

Не в сети - Электрик

Профиль 
30 авг 2013, 14:09 Сообщение
Вот не пойму зачем на потребители которые работают кратковременно тянуть отдельные линии? Я про групы "чайник. вытяжка" "микроволновка мясорубка". На кухню для розеток "мелочевки" полностью хватает одной, от силы двух линий. Жирно это всё.
Ответить с цитатой 


Re: Покритикуйте пожалуйста 1- схему электрооборудования двушки

Не в сети - Лидер тех. поддержки

Профиль 
30 авг 2013, 16:58 Сообщение
Про номиналы УЗО уже сказано ранее. Не хотите прислушаться... как хотите.
Ответить с цитатой 


Re: Покритикуйте пожалуйста 1- схему электрооборудования двушки

Не в сети - Новенький

Профиль 
30 авг 2013, 20:49 Сообщение
sergey_sav писал(а)
Про номиналы УЗО уже сказано ранее. Не хотите прислушаться... как хотите.


Подскажите пожалуйста, что не так с номиналами УЗО? Я просто не совсем понял? !!!
Ответить с цитатой 


Re: Покритикуйте пожалуйста 1- схему электрооборудования двушки

Не в сети - Лидер тех. поддержки

Профиль 
30 авг 2013, 22:06 Сообщение
Если после УЗО установлено несколько автоматов, то номинальный ток УЗО должен быть не менее (лучше, если более) суммы номиналов автоматов, или же не менее номинала вышестоящего автомата.
А посему, пересмотрите все номиналы УЗО.
По этой же причине установка после АВ 63А УЗО с номинальным током 50А недопустима.
Ответить с цитатой 


Re: Покритикуйте пожалуйста 1- схему электрооборудования двушки

Не в сети - Почётный Гуру клуба

Профиль 
01 сен 2013, 10:55 Сообщение
Пересмотрите номиналы УЗО
Они должны превышать номинал автоматов на одну или две ступени по току
Ответить с цитатой 


Re: Покритикуйте пожалуйста 1- схему электрооборудования двушки

Не в сети - Новенький

Профиль 
02 сен 2013, 09:25 Сообщение
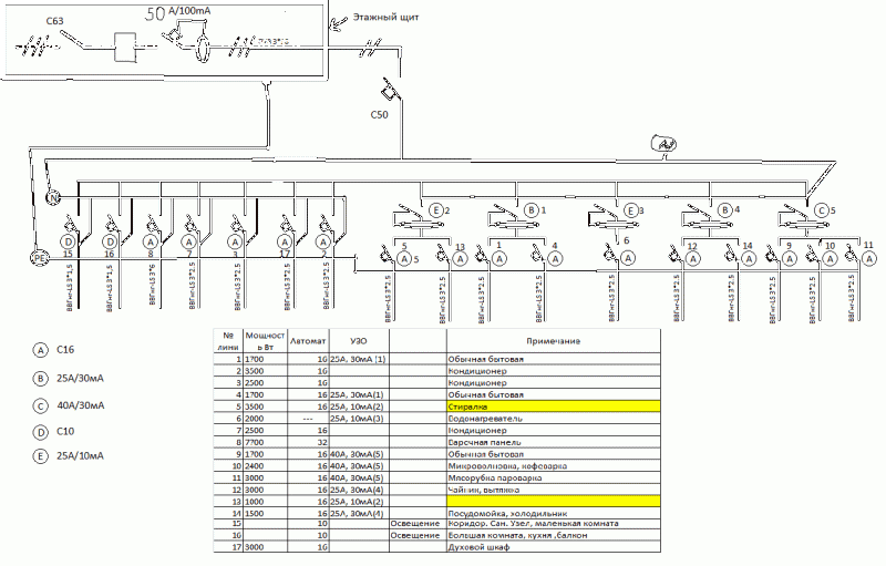
Доброго дня!
Поменял УЗО на 63А/30мА и немного уменьшил их колличество, так как не смог подобрать подходящий шкаф - нашел на 24 места, а следующий уже на 36. Также поставил вводной автомат в квартире С63, единственное, что меня теперь смущает - это номинал Узо в этажном щитке 50А ???

Вложения

Покритикуйте пожалуйста 1-  схему электрооборудования двушки - Схема электрооборудования1
Покритикуйте пожалуйста 1- схему электрооборудования двушки - Схема электрооборудования1
[ 41.75 КБ | Просмотров: 612 ]


Ответить с цитатой 


Re: Покритикуйте пожалуйста 1- схему электрооборудования двушки

Не в сети - Лидер тех. поддержки

Профиль 
02 сен 2013, 18:33 Сообщение
SAST писал(а)
единственное, что меня теперь смущает - это номинал Узо в этажном щитке 50А ???

Если это единственное, что смущает, то меняйте автомат в квартире на 50А.
Если это сильно занижает выделенную на квартиру мощность (можно свериться с проектом на новостройку), то меняйте вводное УЗО на 63/0,1 S.
Ответить с цитатой 


Re: Покритикуйте пожалуйста 1- схему электрооборудования двушки

Не в сети - Новенький

Профиль 
03 сен 2013, 08:41 Сообщение
sergey_sav писал(а)


SAST писал (а): единственное, что меня теперь смущает - это номинал Узо в этажном щитке 50А ???




Если это единственное, что смущает, то меняйте автомат в квартире на 50А.
Если это сильно занижает выделенную на квартиру мощность (можно свериться с проектом на новостройку), то меняйте вводное УЗО на 63/0,1 S.


Думаю, что с учетом того, что по проекту на квартиру выделяется 10кВт, можно действительно заменить вводной атомат в квартире на 50А. Скажите в остальном всё нормально? Спасибо!

Добавлено спустя 1 час 32 минуты 21 секунду:
Добавил КУП

Вложения

Покритикуйте пожалуйста 1-  схему электрооборудования двушки - Схема электрооборудования1
Покритикуйте пожалуйста 1- схему электрооборудования двушки - Схема электрооборудования1
[ 44.04 КБ | Просмотров: 568 ]


Ответить с цитатой 


Re: Покритикуйте пожалуйста 1- схему электрооборудования двушки

Не в сети - Новенький

Профиль 
04 сен 2013, 20:06 Сообщение
Уважаемые форумчане, не игнорируйте пожалуйста dolf . Отпишитесь пожалуйста касательно жизнеспособности последнего варианта схемы. Возможно её можно каким-то образом улучшить. Заранее всем большое спасибо!
Ответить с цитатой 


Re: Покритикуйте пожалуйста 1- схему электрооборудования двушки

Не в сети - Лидер тех. поддержки

Профиль 
05 сен 2013, 02:41 Сообщение
SAST писал(а)
касательно жизнеспособности последнего варианта схемы
Жизнеспособен.
Ответить с цитатой 

Начать новую тему  Ответить
Вернуться к началу


Страница 1 из 1 [ Сообщений: 15 ]
Пред. тема | След. тема

Сейчас эту тему просматривают: нет зарегистрированных пользователей и гости 1






Найти
Перейти
 


cron
Полная версия

Рейтинг-каталог строительных сайтов - Electric House