-
- Объявления
|
Электромонтаж Электромонтажные работы в деревянном доме. www.electric-house.ru |
Местная Конституция | FAQ - Часто задаваемые вопросы | Для новичков! | Реклама на форуме! | Публикация сообщений | Как вставить картинку или файл
Прежде чем задать вопрос, воспользуйтесь поиском - возможно, что такая тема уже есть на форуме. За нарушение правил Ваш вопрос может быть удален без объяснения причин!
-
- Сообщение
- ser-ozerov / Автор темы

- Участник

- Прогресс звания:
-
- Заслуженная репутация: 0 +0 / -0

Меняем проводку в однокомнатной квартире
Решил поменять проводку в квартире, дом 606-серии,бетон.Набросал такую вот схему. Старую проводку трогать не буду, просто перекину питание на квартирный щиток. Провода идут по потолку, затем разделяются в распред.коробках и в гофре утапливаются в стены до нужного места. Соединять в коробках планирую с помощью клеммников Wago. Питание на квартиру 3*6 ,на варочную поверхность и стиральную машину 3*4 ,на розетки 3*2,5 ,на освещение 3*1,5 ,провод медный NYM. Имеет ли смысл кинуть на освещение провод 3*2.5,что бы не покупать две бухты по 100метров 3*2,5 и 3*1,5 ,слишком много останется провода. Какие посоветуете купить автоматы и УЗО. Нужно что-нибудь поменять в схеме?
-
- Сообщение
- 116rus


- Бригадир

- Прогресс звания:
-
Re: Меняем проводку в однокомнатной квартире
Автоматы и УЗО подбирайте по мощности либо по допустимому току для ваших сечений проводов!
-
- Сообщение
- sergey_sav







- Лидер тех. поддержки

- Технический директор

- Прогресс звания:
-
- Заслуженная репутация: 161 +50 / -0

















Re: Меняем проводку в однокомнатной квартире
ser-ozerov писал(а):Нужно что-нибудь поменять в схеме?
Может и нужно...
Если бы схему увидели, тогда точнее можно сказать.
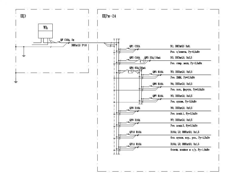
Пока вижу непонятку только с кабелем на варочную и стиралку. Для электроплиты (если варочную принять за таковую) "малавата будит" ©... и требуется 3*6. Для стиралки многовато и будет достаточно 3*2,5.
На свет не возбраняется 3*2,5, но из экономических соображений и удобства расключения выключателей и светильников, несколько неудобно...
Все тематические вопросы и ответы на них только на форуме!
Санк-Петербург. Электромонтажные работы.
-
- Сообщение
- ser-ozerov / Автор темы

- Участник

- Прогресс звания:
-
- Заслуженная репутация: 0 +0 / -0

Re: Меняем проводку в однокомнатной квартире
-
- Сообщение
- sergey_sav







- Лидер тех. поддержки

- Технический директор

- Прогресс звания:
-
- Заслуженная репутация: 161 +50 / -0

















Re: Меняем проводку в однокомнатной квартире
Все тематические вопросы и ответы на них только на форуме!
Санк-Петербург. Электромонтажные работы.
-
- Сообщение
- ser-ozerov / Автор темы

- Участник

- Прогресс звания:
-
- Заслуженная репутация: 0 +0 / -0

Re: Меняем проводку в однокомнатной квартире
1-входной автомат на 63А
2-освещение:комната,ванная,туалет,прихожая автомат 16А
3-розетки:прихожая,комната. кондиционер автомат 20А
4-освещение кухня автомат 16А
5-розетки кухня, холодильник автомат 20А
6-варочная панель автомат 20А
7-теплый пол автомат 20А
8-стиральная машина и душевая кабинка, через распред.коробку автомат 20А
желтая шина земля
синяя шина ноль
-
- Сообщение
- sergey_sav







- Лидер тех. поддержки

- Технический директор

- Прогресс звания:
-
- Заслуженная репутация: 161 +50 / -0

















Re: Меняем проводку в однокомнатной квартире
2. 10А, а то и 6А
3. 16А
4. см. п.2
5. см. п.3
6. не мало будет для варочной?
7. это на всю площадь квартиры тёплый пол?
8. см. п.3
Не заметил на розеточных группах ни одного УЗО, особенно в ванной...
Все тематические вопросы и ответы на них только на форуме!
Санк-Петербург. Электромонтажные работы.
-
- Сообщение
- ser-ozerov / Автор темы

- Участник

- Прогресс звания:
-
- Заслуженная репутация: 0 +0 / -0

Re: Меняем проводку в однокомнатной квартире
-
- Сообщение
- sergey_sav







- Лидер тех. поддержки

- Технический директор

- Прогресс звания:
-
- Заслуженная репутация: 161 +50 / -0

















Re: Меняем проводку в однокомнатной квартире
ser-ozerov писал(а):теплый пол только на кухне и то небольшой.
Тогда достаточно АВ С10А и кабеля 3*1,5.
надо как-то все уложить в 12 местный щиток. что можно добавить и что удалить?
Можно группы 3, 5, 7, 8 посадить под одно УЗО 63/0,03
Можно вынести группу 8 под отдельный дифавтомат С16/0,03
какой автомат для варочной?
Все тематические вопросы и ответы на них только на форуме!
Санк-Петербург. Электромонтажные работы.
-
- Сообщение
- ser-ozerov / Автор темы

- Участник

- Прогресс звания:
-
- Заслуженная репутация: 0 +0 / -0

Re: Меняем проводку в однокомнатной квартире
УЗО 63/0,03 ставится под входной автомат, а как выглядит схематически подключение к нему групп 3,5,7
-
- Сообщение
- sergey_sav







- Лидер тех. поддержки

- Технический директор

- Прогресс звания:
-
- Заслуженная репутация: 161 +50 / -0

















Re: Меняем проводку в однокомнатной квартире
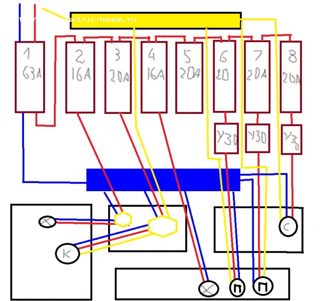
Про подключение УЗО на несколько групп смотрите пример.
Все тематические вопросы и ответы на них только на форуме!
Санк-Петербург. Электромонтажные работы.
-
- Сообщение
- ser-ozerov / Автор темы

- Участник

- Прогресс звания:
-
- Заслуженная репутация: 0 +0 / -0

Re: Меняем проводку в однокомнатной квартире
Добавлено спустя 19 минут 50 секунд:
на варочной все 4 конфорки думаю не придется использовать.
дифавтомат дорогой ...
-
- Сообщение
- sergey_sav







- Лидер тех. поддержки

- Технический директор

- Прогресс звания:
-
- Заслуженная репутация: 161 +50 / -0

















Re: Меняем проводку в однокомнатной квартире
ser-ozerov писал(а): как теперь, нормально, можно собирать?
Дифавтомат надо запитывать до УЗО 63А, а не после.
Нормально ли? Скорее нет, чем да. Вроде не предлагалось под общее УЗО ещё и свет заталкивать.
Все тематические вопросы и ответы на них только на форуме!
Санк-Петербург. Электромонтажные работы.
-
- Сообщение
- sergey_sav







- Лидер тех. поддержки

- Технический директор

- Прогресс звания:
-
- Заслуженная репутация: 161 +50 / -0

















Re: Меняем проводку в однокомнатной квартире
Рекомендую: рисуйте схемы со всеми проводниками и с нулями и с землями(и отходящими и приходящими и внутреннюю прокладку), именно так, как будете потом прокладывать. Тогда избежите ошибок, возможно.
Все тематические вопросы и ответы на них только на форуме!
Санк-Петербург. Электромонтажные работы.
-
- Сообщение
- sergey_sav







- Лидер тех. поддержки

- Технический директор

- Прогресс звания:
-
- Заслуженная репутация: 161 +50 / -0

















Re: Меняем проводку в однокомнатной квартире
Все тематические вопросы и ответы на них только на форуме!
Санк-Петербург. Электромонтажные работы.
-
- Сообщение
-
- Сообщение
- ser-ozerov / Автор темы

- Участник

- Прогресс звания:
-
- Заслуженная репутация: 0 +0 / -0

Re: Меняем проводку в однокомнатной квартире
-
- Ссылки на тему
| Ссылка: | |
| BBcode: | |
| HTML: |
-
- Похожие темы
- Ответы
- Просмотры
- Последнее сообщение
-
-
Можно ли ставя плинтус повредить проводку соседям снизу?
Marisa в форуме Электромонтаж в квартире - 4
- 528
-
Morigan
17 мар 2013, 14:08
-
Можно ли ставя плинтус повредить проводку соседям снизу?
-
-
Электрик сделал проводку а распаялся просто скрутки.
Serega86 в форуме Электромонтаж в квартире - 17
- 1067
-
ВИТАЛИЙ ЙЙ
20 янв 2012, 19:21
-
Электрик сделал проводку а распаялся просто скрутки.
-
-
Как провести проводку в лопасти крутящейся мельницы
fibboo в форуме Электромонтаж в нежилых помещениях - 8
- 429
-
FRIM@N
12 дек 2011, 18:43
-
Как провести проводку в лопасти крутящейся мельницы
-
-
Как грамотно развести проводку на все розетки и светильники?
k0syak в форуме Вопросы от чайников - 3
- 1423
-
elhouse
31 мар 2013, 12:49
-
Как грамотно развести проводку на все розетки и светильники?
-
-
Сделал проводку проводом ПВС (что делать?)
zin в форуме Электромонтаж на даче, коттедже, бане - 12
- 5218
-
sergey_sav
17 дек 2011, 21:19
-
Сделал проводку проводом ПВС (что делать?)
-
- Объявления
Вернуться в Электромонтаж в квартире
Кто на форуме
Всего посетителей: 1, из них зарегистрированных: 0, скрытых: 0 и гостей: 1 (основано на активности пользователей за последние 10 минут)
Больше всего посетителей (279) здесь было 04 сен 2013, 15:45
Сейчас эту тему просматривают: нет зарегистрированных пользователей и гости 1
Права доступа
Вы не можете начинать темы
Вы не можете отвечать на сообщения
Вы не можете редактировать свои сообщения
Вы не можете удалять свои сообщения
Вы не можете добавлять вложения
Легенда
| Новые сообщения | Нет новых сообщений | Форум закрыт | |||
| Подфорум Новые сообщения | Подфорум Нет новых сообщений | Ссылка на форум |
-
- Объявления
|
phpBB® Forum Software © phpBB Group
Русская поддержка phpBB Связь с администрацией Администраторский раздел |
|


Загрузка. Подождите...





















